• PROJECTS
    • RESIDENTIAL
    • HOTELS AND RESTAURANTS
    • CORPORATE AND RETAIL
  • PRESS
  • ABOUT US
  • CONTACT
  • PROYECTOS
    • RESIDENCIAL
    • HOTELES Y RESTAURANTES
    • CORPORATIVO Y COMERCIAL
  • MEDIOS
  • NOSOTROS
  • CONTACTO
  • ENG
  • ESP
  • Menu

Studio 91

  • PROJECTS
    • RESIDENTIAL
    • HOTELS AND RESTAURANTS
    • CORPORATE AND RETAIL
  • PRESS
  • ABOUT US
  • CONTACT
  • PROYECTOS
    • RESIDENCIAL
    • HOTELES Y RESTAURANTES
    • CORPORATIVO Y COMERCIAL
  • MEDIOS
  • NOSOTROS
  • CONTACTO
  • ENG
  • ESP
View fullsize PRINCIPAL-copy.jpg

CASA B

July 11, 2018 in ESP

CASA B

RESIDENCIAL

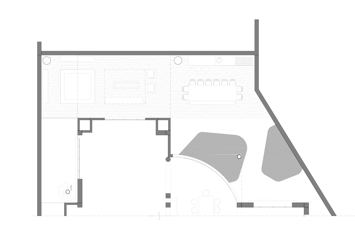
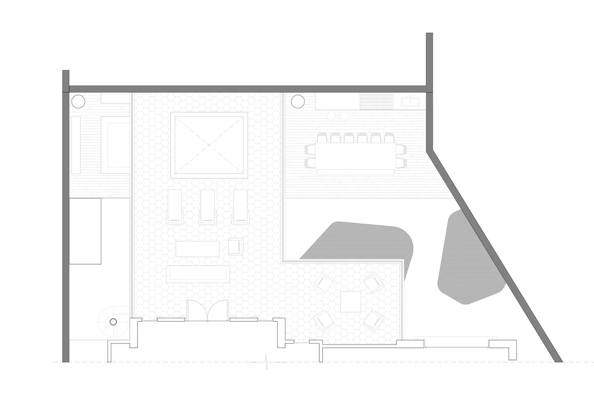
Un pabellón se anexa a una casa en Bosque de las Lomas con un programa de recreación, ocio y esparcimiento los cuales conforman un espacio híbrido interior y exterior.

AÑO: 2016

FOTOS: Aldo C. Gracia

Lomas de Vistahermosa, CDMX

Entre la casa preexistente y un muro de piedra de Oaxaca se desarrolla el pabellón con un desayunador, una estancia de entretenimiento, un asoleadero, un jacuzzi y una fogata, elementos distribuidos en dos niveles conectados visualmente por un domo. El deck de madera en el piso se replica en el plafón creando un ambiente cálido y evitando un techo frío.

View fullsize 1.jpg
View fullsize 2.jpg
View fullsize 3.jpg
View fullsize 4.jpg
View fullsize 5.jpg
PA_casa_B_.jpg PB_casa_B_.jpg Corte_casa_B_.jpg Explotado_casa_B_ copy.jpg

 

 

_

"Las bancas de concreto diseñadas en sitio, complementan el proyecto de paisaje y jardinería que da acceso al espacio amueblado con diseños de Kartell. Gloster, Gervasoni, Cattelan y muebles vintage reutilizados."

_

 
Tags: RESIDENCIAL
Prev / Next

POLÍTICA DE PRIVACIDAD

En cumplimiento a la LEY FEDERAL DE PROTECCIÓN DE DATOS PERSONALES EN POSESIÓN DE LOS PARTICULARES, tiene como fin informarle el tipo de datos personales que recabamos de Usted, cómo los usamos y manejamos. Como cliente, prestador de servicios o proveedor le podemos solicitar información personal relativa a:

Su nombre y correo electrónico.

USOS Y FINALIDADES DE SUS DATOS PERSONALES

Esta empresa sus filiales y/o subsidiarias recaban y usan sus datos personales para el cumplimiento de las siguientes finalidades:

Confirmar su identidad.

Entender y atender sus necesidades de carácter comercial.

Otorgar seguridad y certeza jurídicas a los hechos y actos que celebra, como pueden ser operaciones traslativas de dominio relativas a compraventas, contratos promesa, contratos de arrendamiento, contratos de prestación de servicios y o cualesquier otros documentos necesarios para la finalidad por la cual se acercaron a la empresa sus filiales o subsidiarias. Elaborar los instrumentos jurídicos de su interés.
Cumplir con los requerimientos legales que le son aplicables.
Verificar la información que nos proporciona.
Dar cumplimiento a las disposiciones relativas en la legislación vigente y aplicable.

SEGURIDAD

Sus datos personales sólo son tratados por el personal de la empresa a efecto de elaborar los instrumentos jurídicos y/o comerciales para formalizar su solicitud y dar seguimiento a la misma, sus datos personales no se transfieren a ningún tercero ajeno a ella, salvo para el cumplimiento de obligaciones legales ante las autoridades competentes tales como autoridades tributarias, así como las autoridades judiciales y empresas quienes nos apoyan al cumplimiento de dar seguimiento con las obligaciones contractuales o nos prestan servicios necesarios para formalizar, operar y/o dar seguimiento a la relación comercial por lo cual nos entregan sus datos. No será necesario el consentimiento de “EL “TITULAR” para el tratamiento de datos personales, solo en las siguientes ocasiones excepcionales:

Que los datos figuren en fuentes de acceso público.

Que tengan el propósito de cumplir obligaciones derivadas de una relación jurídica entre el “TITULAR” y “EL RESPONSABLE”.
En caso de exista una situación de emergencia que pueda dañar a un individuo en su persona o en sus bienes o sean necesarios para la atención médica, la prevención, diagnóstico, la prestación de asistencia sanitaria, tratamientos médicos o la gestión de servicios sanitarios.

DERECHOS QUE LE CORRESPONDEN

Usted puede limitar el uso y divulgación de su información personal a través de los siguientes medios que hemos instrumentado:

Presentando su solicitud personalmente en nuestro domicilio dirigida a la persona encargada de la privacidad en esta oficina.
Enviando correo electrónico a la siguiente dirección electrónica: info@studio91.com.mx

El ejercicio de los derechos de acceso, rectificación, cancelación y oposición o la revocación del consentimiento, podrán efectuarse presentado solicitud por escrito en nuestro domicilio dirigida a la persona o departamento de privacidad, o bien, vía correo electrónico a info@studio91.com.mx, en el entendido de que una vez plasmados en un convenio, contrato, orden de compra, etc. Ud. no podrá ejercer sobre ellos ninguno de los referidos derechos, pudiendo hacerlo solamente respecto de los que se conservan en la base de datos de la empresa.

CAMBIOS A LA POLÍTICA DE PRIVACIDAD

El presente aviso de privacidad puede sufrir modificaciones, cambios o actualizaciones por lo cual nos comprometemos a mantenerlo informado de tal situación a través de alguno de los siguientes medios:

En nuestra página de internet: www.studio91.com

En nuestro domicilio, Av. Secretaría de Marina 461, Lomas de Vista Hermosa, 05100 Ciudad de México, CDMX